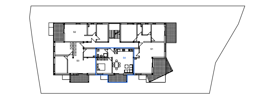
SJ12 APARTMENT 6

2nd FLOOR

55,93 m2

residential NKP

Apartment 6, total area 55.93 m2, located on the second floor of a residential and commercial building.

SJ12 - APARTMENT 6 neto (m2) useful (m2)
ENTRANCE AREA, HALLWAY4,464,46
LIVING ROOM, KITCHEN AND DINING ROOM26,8026,80
BATHROOM5,205,20
BEDROOM13,8013,80
LOGGIA7,565,67
TOTAL:57,8255,93

Other apartments

SJ1 SUITE 1

Ground floor,

SJ1 SUITE 1

Ground floor,

SJ2 SUITE 2​

Ground floor,

SJ2 SUITE 2​

Ground floor,

SJ3 SUITE 3

Ground floor,

SJ3 SUITE 3

Ground floor,

SJ4 APARTMENT 1

Ground floor,

SJ4 APARTMENT 1

Ground floor,

SJ5 APARTMENT 2

Ground floor,

SJ5 APARTMENT 2

Ground floor,

SJ6 SUITE 4

1st floor,

SJ6 SUITE 4

1st floor,

SJ7 SUITE 5

1st floor,

SJ7 SUITE 5

1st floor,

SJ8 SUITE 6

1st floor,

SJ8 SUITE 6

1st floor,

SJ9 APARTMENT 3

1st floor,

SJ9 APARTMENT 3

1st floor,

SJ10 APARTMENT 4

1st floor,

SJ10 APARTMENT 4

1st floor,